Username or email *
Password *
Log in
£10,200.00
Natural
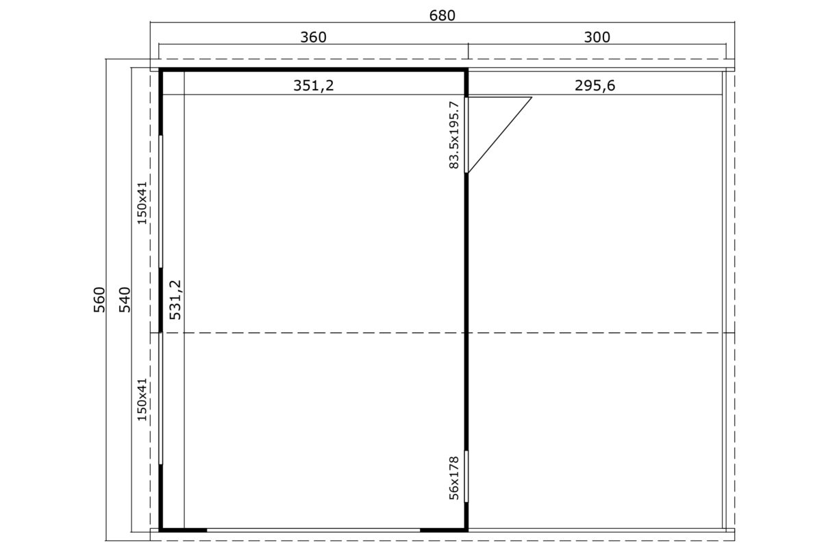
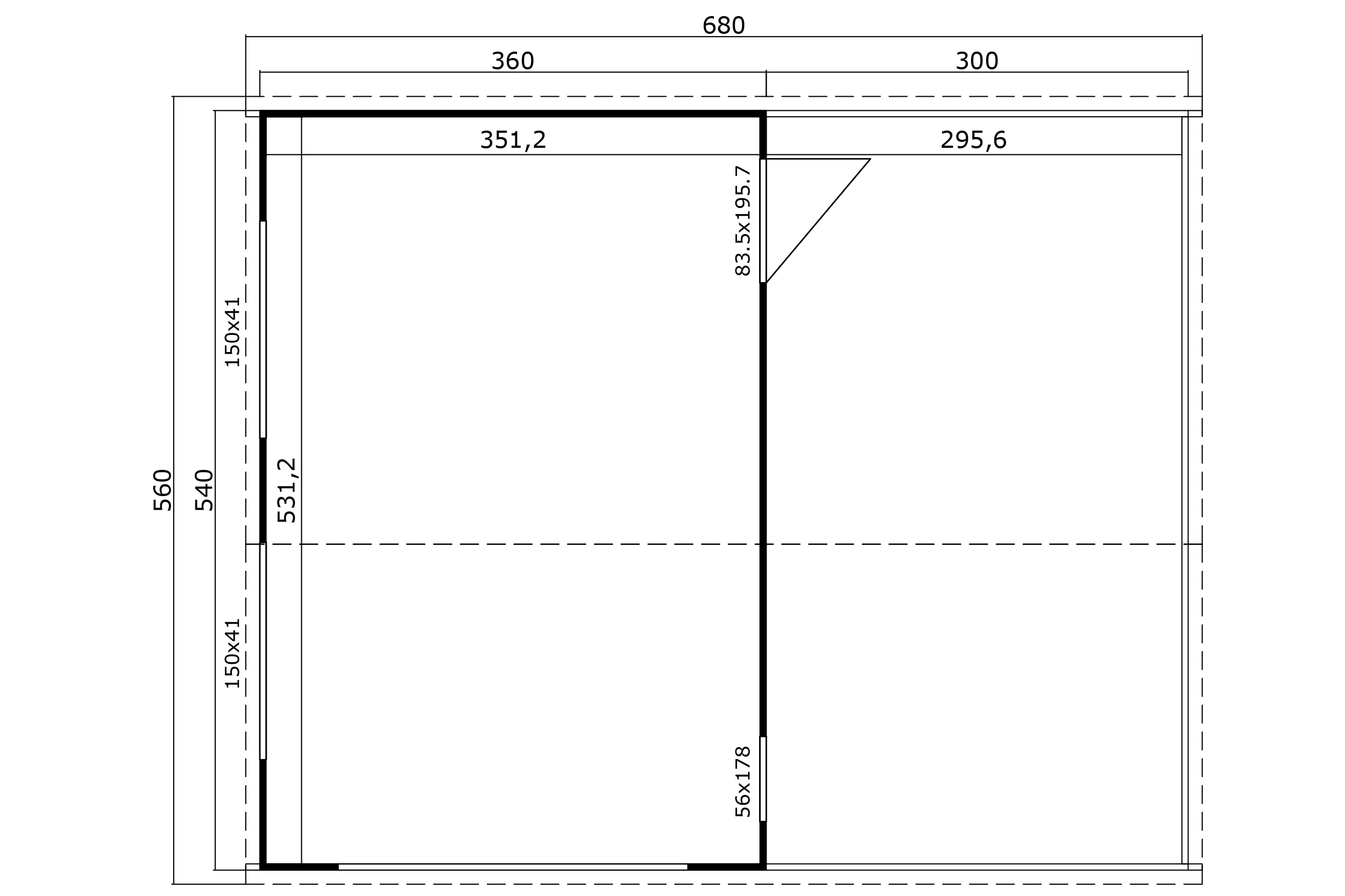
240 x 205cm + 84 x 190cm
660 x 540cm
251cm
34.6m2
44mm
56 x 178cm + 2x 150 x 41cm