Dillon

£11,111.00

Color

Natural

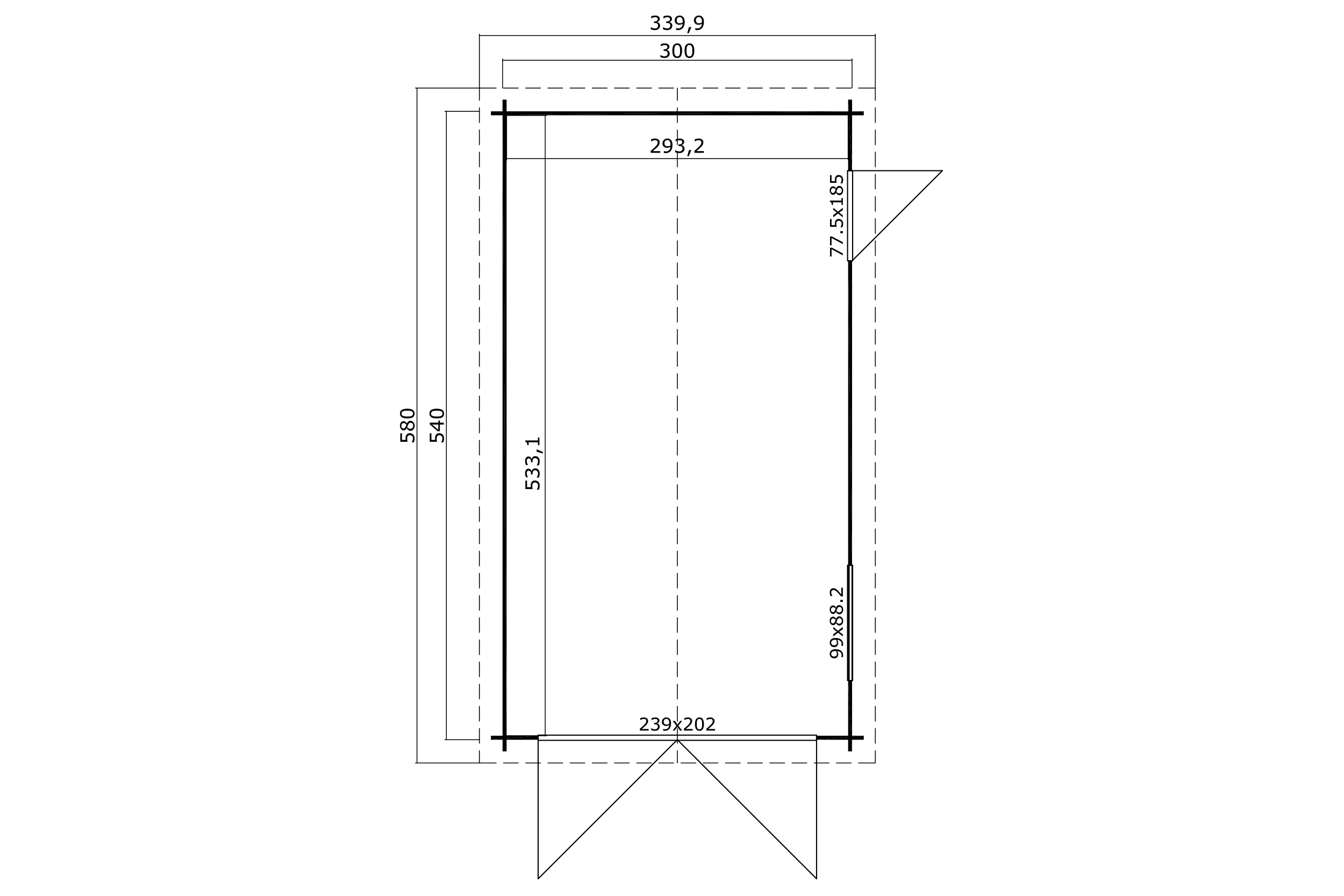
Door Dimensions

78 x 185cm, 239 x 202cm

External Dimensions

300 x 540cm

Ridge Height

274cm

Size

15.7m2

Wall Thickness

28mm

Window Dimensions

99 x 88cm

Category: