Username or email *
Password *
Log in
£8,600.00
Natural
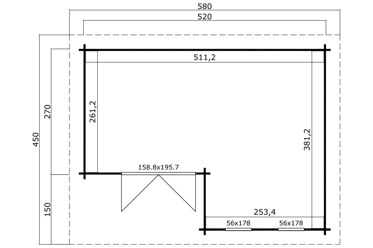
159 x 196cm
520 x 390cm
234cm
19.5m2
44mm
2x 56 x 178cm