Torquay

£7,100.00

Color

Natural

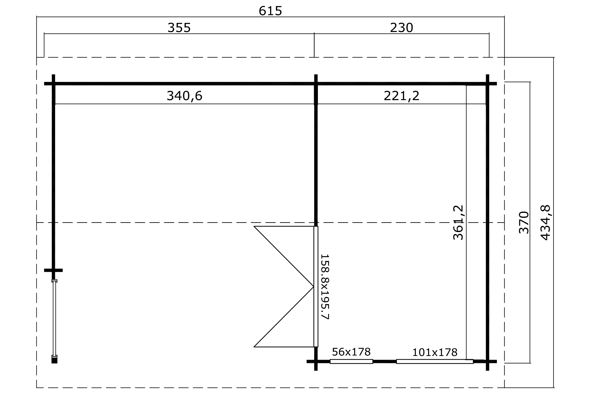
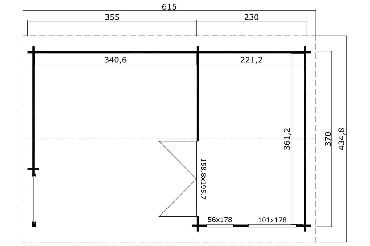
Door Dimensions

56 x 178cm, 159 x 196cm

External Dimensions

575 x 370cm

Ridge Height

245cm

Size

20.6m2

Wall Thickness

44mm

Window Dimensions

101 x 178cm

Category: